Casa em Capão da Canoa

Jardim Beira Mar - Capão da Canoa

  • 3 Dormitórios
  • 2 Banheiros
  • 1 Vagas

Descrição do Imóvel

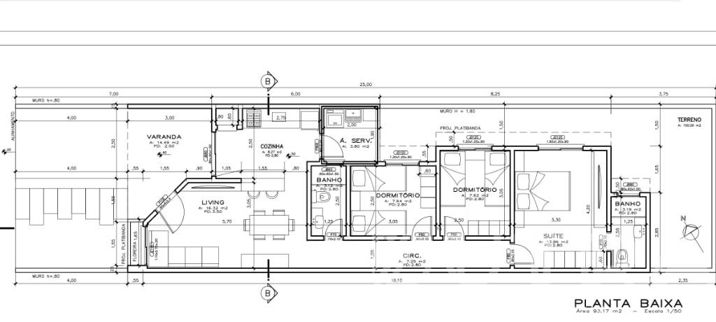
Casa no Jardim Beira-Mar, em fase de obra, será composta por 3 dormitórios (sendo 1 suíte), banho social, lavabo, cozinha, churrasqueira, sala de estar/jantar, living 2 ambientes, área de serviço, esperas para splits/água quente, varanda e 1 vaga para carro. Não fique de fora dessa, adquira esse imóvel por apenas 395 mil + honorários!

Características do Imóvel

  • Área de serviço
  • Churrasqueira
  • Varanda
  • Banho Social
  • Cozinha
  • Lavabo
  • Living 2 Ambientes
  • Esperas Split
  • Sala de estar / jantar

Gostou deste imóvel?
Peça mais informações